=
2025 – SCAËR – Finistère
Habitation individuelle principale
Auto-Renovation Accompagnée
Durée estimée des travaux : 20 mois
Durée de l’opération : 26 mois
ETUDE DE FAISABILITE
Ur c’hornig baradoz e Skaer ou un petit coin de paradis à Scaër.
En 2023, le maitre d’ouvrage fait l’acquisition d’une habitation avec ses annexes sur un beau terrain en pente de 5000 m2.
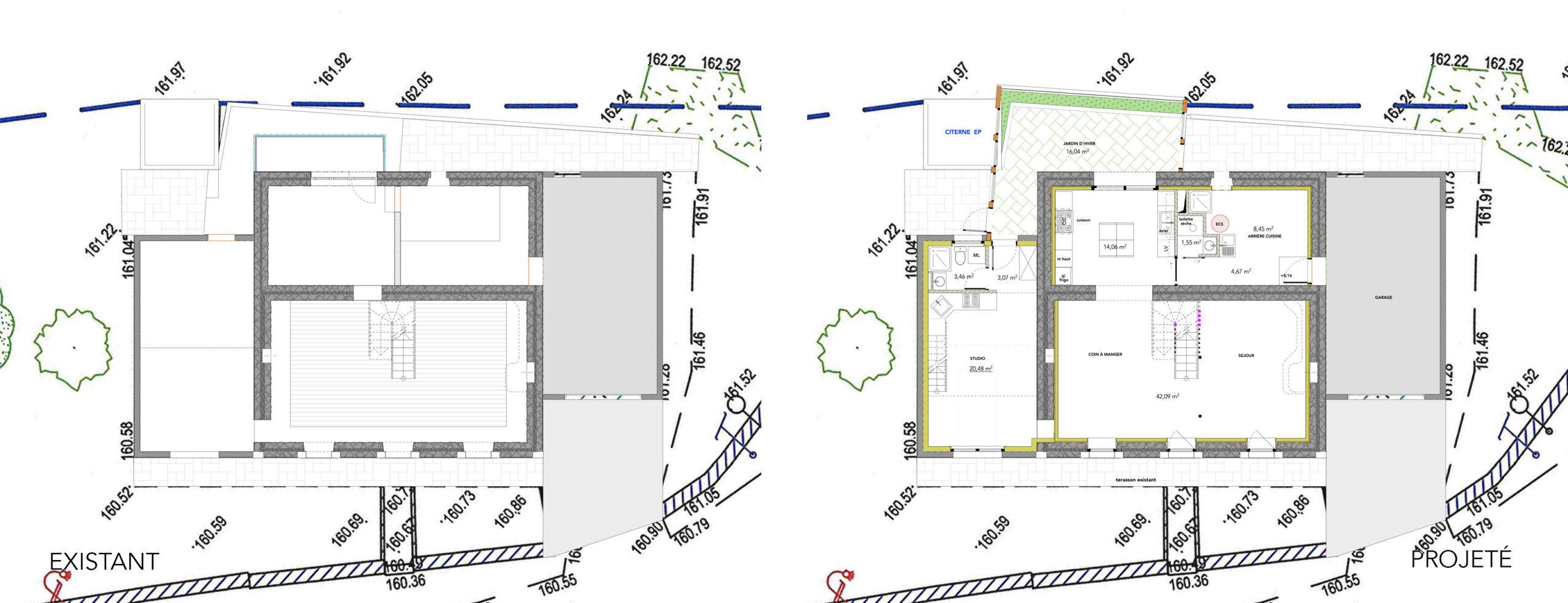
Suite aux divers diagnostics, il apparait que l’assainissement est à recréer, l’électricité itou et que la mérule a pris place dans une grande partie des constructions. Il s’ensuit la démolition de toutes les cloisons et doublages, de la dépose des planchers de la mise à nu des charpentes et du traitement des locaux contre ces champignons.
Dans une suite logique, le propriétaire consulte une agence d’architecte pour élaborer un projet de rénovation et transformations. Pas satisfait du projet proposé et libéré de tout contrat, il consulte l’atelier Upbdp, membre de TWIZA, pour un contre-projet afin d’éviter d’engager des travaux qui seraient à reprendre.
Le cahier des charges est clair, une rénovation en autoconstruction accompagnée selon un budget qui reste à définir avec des matériaux biosourcés, avec une marge de manœuvre sur la désignation des locaux. Le maitre d’ouvrage sera aussi le maitre d’œuvre.
La mission d’architecte qui lui est proposée est, en premier lieu, d’établir les relevés complémentaires de l’état existant afin de modéliser le projet, puis de proposer une esquisse d’aménagements des locaux et activés souhaitées et enfin d’estimer le cout de l’opération. Ces interventions et études seront réalisées selon le principe du partage de tâches avec le client.
Pour assurer la suite et engager les travaux sereinement, il lui est proposé de se faire accompagner par un coordinateur spécialisé dans ce type de démarche.
Satisfait du projet et de la démarche, ce propriétaire a engagé les travaux en 2025 avec une enveloppe budgétaire raisonnée incluant des matériaux de qualité.


































































































